Klemiškės g. Klaipėda

Objekto tipas Butas
Sandorio tipas Pardavimui
Kambarių sk. 1
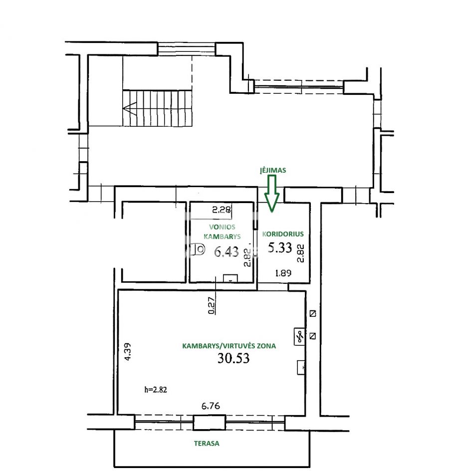
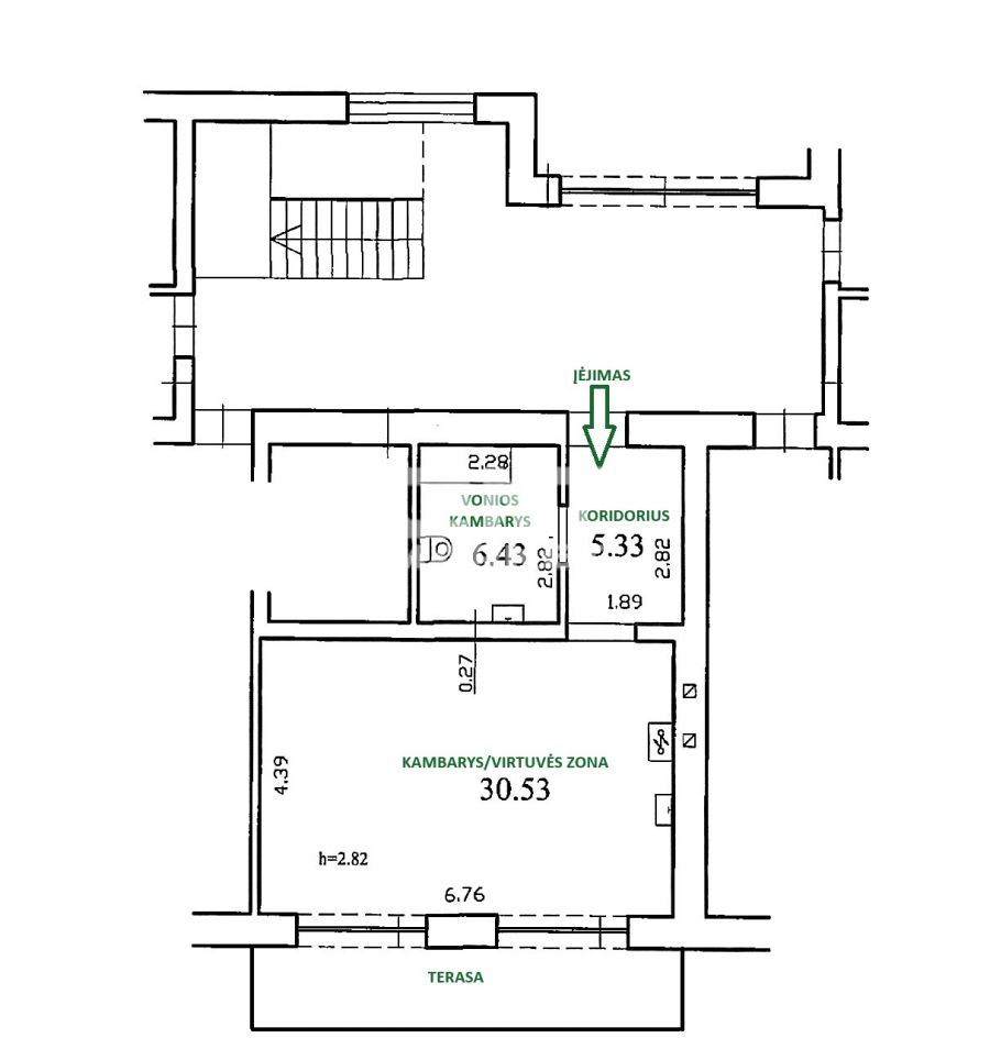
Plotas m2 42,29
Aukštas 1
Aukštų sk. 3
Pastato tipas Mūrinis
Šildymas
  • Dujinis
Kaina €/m2 3121.31
Skelbimo ID 4190
Kaina132 000 €

Parduodamas jaukus 42,29 kv. m butas Klaipėdoje, Klemiškės g.

Pirmo aukšto butas su nuosavu aptvertu kiemeliu – puiki vieta ramiam gyvenimui ar poilsiui po darbo.

Erdvi virtuvės ir svetainės zona, atskirta miegamoji erdvė, patogus vonios kambarys ir drabužinė koridoriuje užtikrina komfortą ir patogų išplanavimą.
Dideli vitrininiai langai iki grindų bei pietvakarių langų orientacija suteikia daug šviesos ir jaukumo visus metus.

PAGRINDINIAI PRIVALUMAI:

  • Nuosavas, aptvertas kiemelis;
  • Patogi drabužinė;
  • Parkavimo vieta automobiliui prie namo;
  • Tvarkinga laiptinė ir draugiška kaimynystė;
  • Geras susisiekimas – iki miesto centro vos keli kilometrai, netoliese Palangos plentas ir viešojo transporto stotelės;
  • Asfaltuotas privažiavimas, išvystyta infrastruktūra.

Tai puikus pasirinkimas norintiems gyventi ramioje, šviesioje ir patogioje vietoje Klaipėdoje!

Papildoma informacija apie skelbimą :
Įrengimas: įrengtas
Ypatybės: Virtuvė sujungta su kambariu
Papildomos patalpos: Terasa
Papildoma įranga: Su baldais; Virtuvės komplektas; Indaplovė; šaldytuvas; Vonia

Panašūs objektai: